blok 01
BEGANE GROND
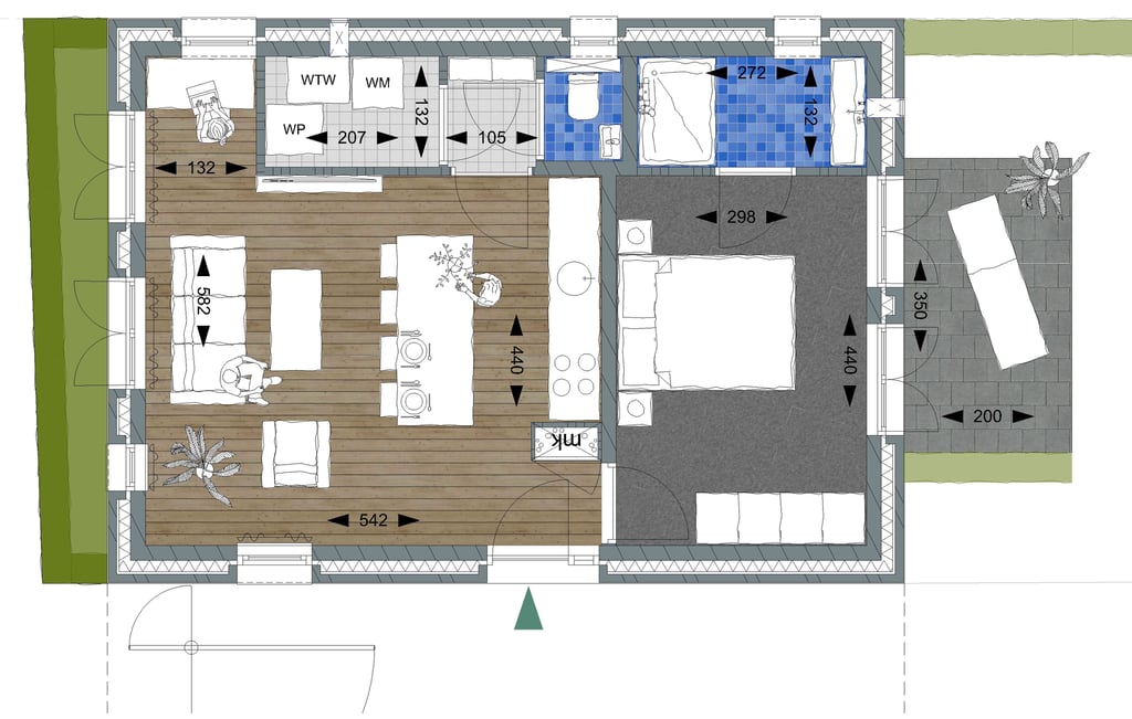
woning 01
Dit comfortabele en modern afgewerkte studio combineert stijlvol wonen met optimale toegankelijkheid – ideaal voor wie compact, zorgeloos en levensloopbestendig wil wonen. Gelegen op de begane grond beschikt de studio over een eigen entree en een buitenruimte in de fraai aangelegde semi-openbare tuin. Het appartement is volledig drempelloos ingericht en ontworpen met oog voor gemak en comfort.
De open-plan leefruimte verbindt wonen, koken en eten op een natuurlijke manier en wordt gekenmerkt door een prettige lichtinval en een ruimtelijk gevoel dankzij de grote raampartijen. De moderne badkamer met inloopdouche sluit direct aan op de slaapkamer en biedt alle comfort.
Dankzij de ligging aan de Oude Markt geniet je van een levendige, sfeervolle omgeving, terwijl de semi-openbare binnentuin juist ruimte biedt voor rust, contact en ontspanning.
Deze studio van 50 m² combineert het beste van comfortabel, stijlvol én verbonden wonen.
Woonkamer 26,0 m2
Slaapkamer 13,0 m2
Badkamer 3,5 m2
Techniek / wasruimte 3,0 m2
buitenberging 3,5 m2
50m2
€205.000/€217.500
PRIJSINDICATIE:
01


04




