blok 01
TWEEDE VERDIEPING
woning 08
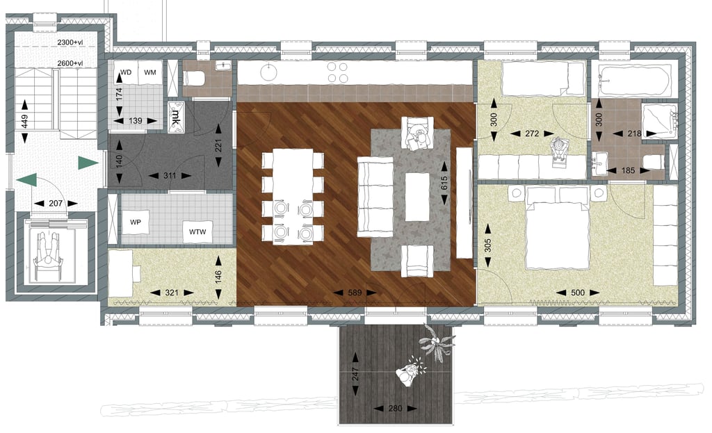
Ruimte, licht en privacy op de tweede verdieping – zonder bovenburen!
Dit moderne appartement combineert comfort, stijl en gemak op een unieke manier. Gelegen dichtbij de lift, biedt deze woning optimaal woonplezier met een volledig drempelloze indeling en doordachte afwerking.
De lichte open-plan leefruimte vormt het hart van het appartement: wonen, eten en een werkhoek lopen vloeiend in elkaar over. Dankzij de grote ramen stroomt het daglicht rijkelijk naar binnen en stap je zo het ruime balkon op met een prachtig uitzicht over de Oude Markt van Waubach – een sfeervolle plek om te genieten van het levendige dorpsleven én van je eigen buitenruimte.
De slaapkamer is een oase van rust en grenst direct aan de moderne badkamer met inloopdouche en stijlvol sanitair. Bovendien heb je toegang tot de semi-private binnenhof, een groene, rustige ontmoetingsplek binnen het complex.
Met brede doorgangen, geen drempels en alle voorzieningen gelijkvloers, is dit appartement volledig voorbereid op comfortabel, toekomstgericht wonen. Een unieke kans om te wonen met licht, ruimte, uitzicht en ultieme privacy – een woning die nét dat beetje extra biedt.
Woonkamer 41,5 m2
Slaapkamer 15,0 m2
Slaapkamer 8,0 m2
Badkamer 6,0 m2
TechniekRUIMTE 3,5 m2
WasRUIMTE 2,5 m2
buitenberging 5,0 m2
87m2
€356.700/€378.450
PRIJSINDICATIE:
08


04




