blok 01
EERSTE VERDIEPING
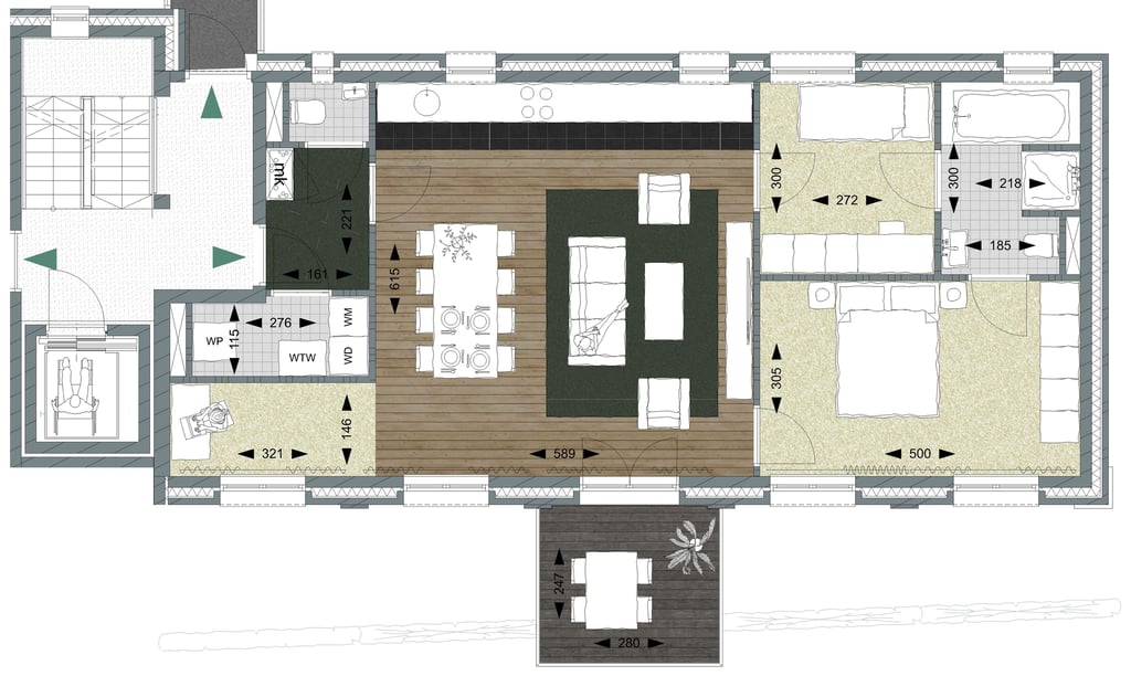
woning 05
Dit gelijkvloerse appartement op de verdieping combineert comfort, toegankelijkheid en modern woonplezier – ideaal voor diegenen die stijlvol en zorgeloos willen wonen. Gelegen dicht bij de lift is het appartement volledig drempelloos ingericht en ontworpen met oog voor gemak en comfort.
De lichte open-plan leefruimte verbindt de woonkamer, het eetgedeelte en een gezellige werkhoek op natuurlijke wijze – perfect voor hobby’s, lezen of rustig thuiswerken. Grote ramen zorgen voor een overvloed aan daglicht en bieden toegang tot een ruim balkon met schitterend uitzicht op de Oude Markt van Waubach: een sfeervolle plek waar je zowel het levendige dorpsleven als het buitenleven optimaal beleeft.
De slaapkamer vormt een rustige plek om je terug te trekken en sluit direct aan op de complete badkamer, voorzien van inloopdouche en modern sanitair. Daarnaast hebben bewoners toegang tot de semi-private binnenhof – een fraai aangelegde groene ruimte die uitnodigt tot ontspanning en ontmoeting.
Met brede doorgangen, geen drempels en alle voorzieningen gelijkvloers is dit appartement helemaal voorbereid op comfortabel en levensloopbestendig wonen. Een unieke kans om stijlvol te wonen met uitzicht, gemak én buitenruimte binnen handbereik.
Woonkamer 40,5 m2
Slaapkamer 15,0 m2
Slaapkamer 8,0 m2
Badkamer 6,0 m2
Techniek / wasruimte 4,0 m2
buitenberging 5,0 m2
82m2
€328.000/€348.500
PRIJSINDICATIE:
05


04




