blok 02
EERSTE VERDIEPING
woning 12
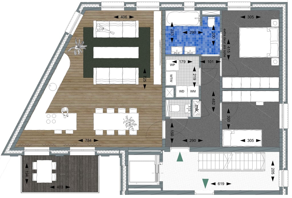
Dit prachtige appartement op de tweede verdieping van blok 2, zonder bovenburen, biedt een unieke combinatie van rust, privacy en modern wooncomfort. Gelegen direct aan de semi-private groene hof, geniet je hier van een rustige, groene omgeving, terwijl het bruisende dorpsleven van Waubach op loopafstand ligt.
Het hart van het appartement wordt gevormd door de royale open-plan leefruimte, waarin wonen en eten op natuurlijke wijze samensmelten. Grote raampartijen laten het daglicht overvloedig binnen en geven toegang tot een ruim balkon met uitzicht op de hof – een heerlijke plek om te ontspannen, te genieten van het groen of rustig een boek te lezen.
Het appartement beschikt over twee volwaardige slaapkamers, een moderne badkamer met inloopdouche en een aparte technische ruimte voor praktische voorzieningen. Brede doorgangen, een volledig drempelloze indeling en alle voorzieningen op één niveau maken dit een ideale woning voor comfortabel en levensloopbestendig wonen.
Een zeldzame kans om te wonen in een lichte, ruime en moderne woning, met privacy, rust én het dorpsleven van Waubach letterlijk voor de deur.
KEUKEN/Woonkamer 43,0 m2
Slaapkamer 12,5 m2
Slaapkamer 9,0 m2
Badkamer 6,5 m2
WAS/TechniekRUIMTE 3,5 m2
buitenberging 5,0 m2
88m2
€359.500/€381.500
PRIJSINDICATIE:
12


04




