blok 02
EERSTE VERDIEPING
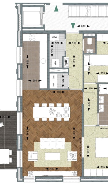
woning 11
Dit appartement op de eerste verdieping in blok 2, direct grenzend aan de semi-private groene hof, biedt rust, privacy en modern wooncomfort. Ideaal voor wie zorgeloos, stijlvol en levensloopbestendig wil wonen, terwijl het dorpsleven van Waubach binnen handbereik ligt.
De lichte open-plan leefruimte vormt het hart van de woning en verbindt wonen en eten op een natuurlijke manier. Grote ramen laten het daglicht binnenstromen en geven toegang tot het ruime balkon aan de hofzijde – een heerlijke plek om te ontspannen en te genieten van groen en rust.
Het appartement beschikt over twee slaapkamers, een moderne badkamer met inloopdouche en een aparte technische ruimte met wasvoorzieningen. Brede doorgangen en geen drempels maken het volledig levensloopbestendig en comfortabel.
Een unieke kans om te wonen in een licht, ruim en modern appartement, met privacy, rust én het dorpsleven van Waubach binnen handbereik.
KEUKEN/Woonkamer 42,5 m2
Slaapkamer 12,5 m2
Slaapkamer 10,0 m2
Badkamer 6,0 m2
WASRIUMTE 2,0 M2
TechniekRUIMTE 3,0 m2
buitenberging 5,0 m2
93m2
€372.000/€395.250
PRIJSINDICATIE:
11


04




